Gemeubileerd 4-kamer appartement in Mariahoeve
Heerlijk in het groen gelegen 4-kamerwoning met 2 slaapkamers, ruime…
Zeesluisweg, Den Haag
Verhuurd


























>English below<
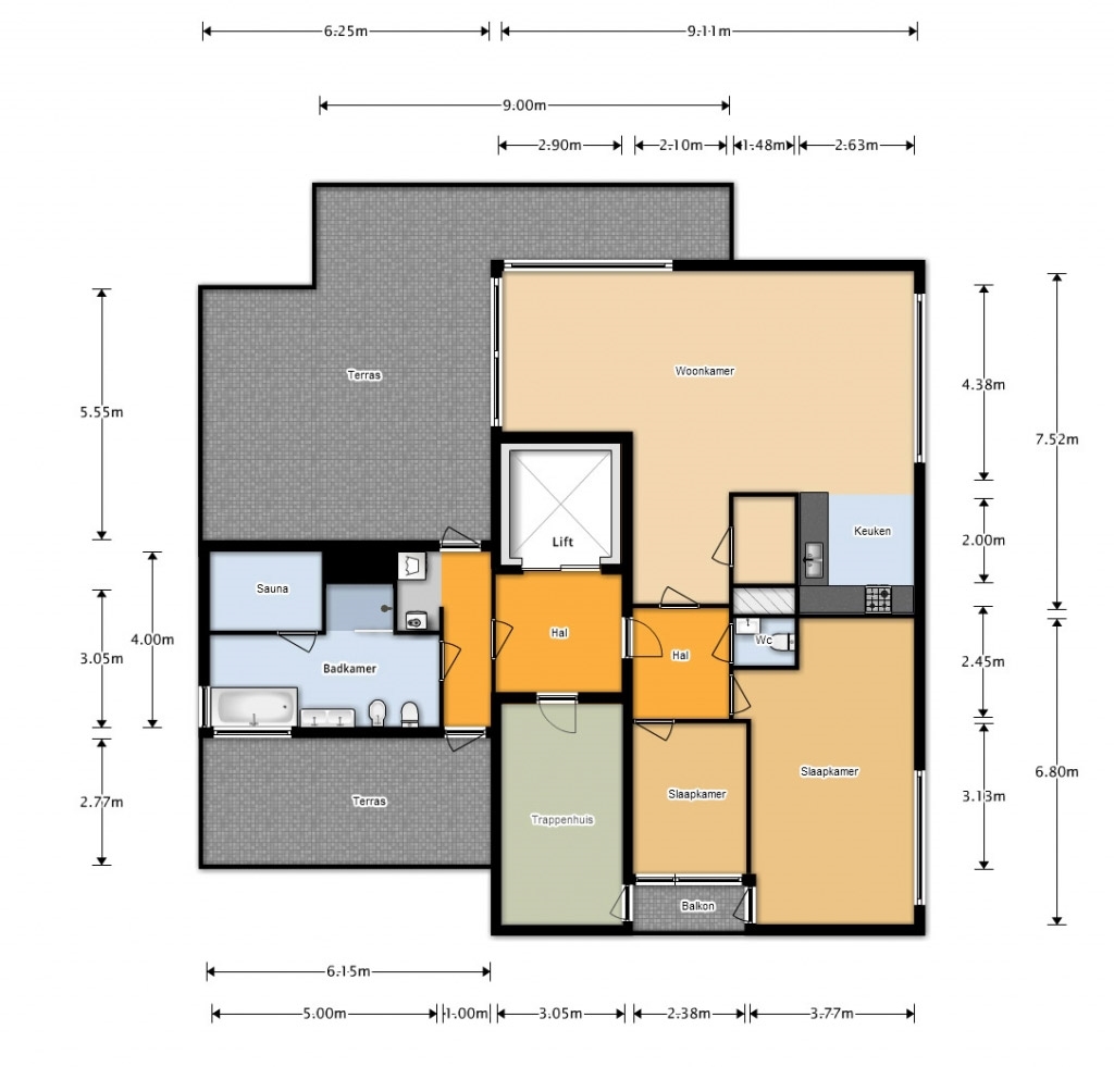
Dit royale penthouse heeft een woonoppervlakte van ca 126m2. De haven, het strand de Keizerstraat en de Frederik Hendriklaan zijn op loopafstand en nabij het openbaar vervoer.
INDELING
De lift neemt je mee naar de bovenste etage en brengt je tot in het penthouse. De prachtige lichte, ruime woonkamer met open keuken biedt veel licht en een prachtig uitzicht over Scheveningen en de haven. Vanuit de woonkamer heeft u tevens toegang tot het grootste terras van de woning waar onder het genot van een hapje en een drankje de ondergaande zon bekeken kan worden. De keuken beschikt over alle benodigde apparatuur; koelkast, vriezer, inductie fornuis, afzuigkap en oven. In de woonkamer heeft u toegang tot een interne berging/pantry.
In de hal richting de slaapkamers is het separate toilet te vinden. De master bedroom beschikt over inbouwkasten. vanuit de master bedroom komt u langs de 2e slaapkamer, richting de hal welke uitkomt in de wasruimte. Deze ruimte is voorzien van een wasmachine en droger. Vanuit deze ruimte heeft u toegang tot het 2e terras van de woning. Aangrenzend aan deze ruimte bevindt zich de ruime badkamer met bad, aparte douche, dubbele wastafel, toilet, bidet en sauna.
Bij interesse kunt u contact opnemen met ons kantoor; info@jahousing.nl of via 070 223 02 99.
>English version<
This spacious penthouse has a living area of approximately 126m2. Within walking distance you will find the Harbor, the beach, the Keizerstraat and the Frederik Hendriklaan, near public transportation.
DESCRIPTION
The elevator takes you to the top floor and brings you into the penthouse. The beautiful bright spacious living room with open kitchen offers lots of light and a beautiful view of Scheveningen and both of the harbors. From the living room you also have access to the largest terrace of the house where you can watch the setting sun while enjoying a snack and a drink. The kitchen has all the necessary appliances; fridge, freezer, induction stove, hood and oven. In the living room you have access to an internal storage room/pantry.
In the hall towards the bedrooms you will find the separate toilet. The master bedroom has fitted wardrobes. From the master bedroom you pass the 2nd bedroom, towards the hallway which leads to the laundry room, this is equipped with a washer and dryer. From this room you have access to the 2nd terrace of the house. Adjacent to this room is the spacious bathroom with bathtub, separate shower, double sink, toilet, bidet and sauna.
When you are interested in the apartment please contact our office: info@jahousing.nl or 070 223 02 99.
Heerlijk in het groen gelegen 4-kamerwoning met 2 slaapkamers, ruime…
Deze zeer ruim opgezette parterre heeft een tuin van maar…
Owning a home is a keystone of wealth… both financial affluence and emotional security.
Suze Orman